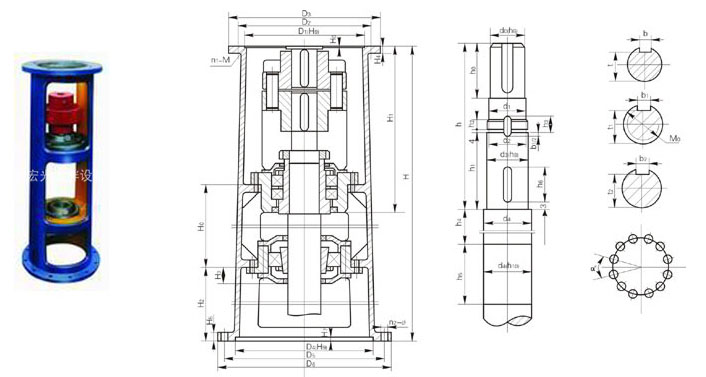
SJ、LSJ型機架(CD130B-86)

SJ、LSJ型雙支點機架主要參數及尺寸
| 機架代號 | H0 | H1 | H3 | H4 | H5 | H6 | H7 | D1 | D2 | D3 | n1-M | D4 | D5 | D6 | a° | n2-φ |
| SJ,LSJ55AB | 450 | 402 | 58 | 22 | 24 | 6 | 6 | 270 |
310 305 |
340 |
6-M10 8-M16 |
325 | 400 | 435 | 30 | 12-φ14 |
| SJ,LSJ65AB | 450 | 487 | 58 | 22 | 24 |
6 5 |
6 | 316 | 360 | 400 |
8-M12 (8-M16) |
350 | 420 | 460 | 30 | 12-φ18 |
| SJ,LSJ70AB | 450 | 487 | 528 | 22 | 24 |
6 5 |
6 |
316(320) 320 |
360 | 400 |
8-M12 8-M16 |
350 | 420 | 460 | 30 | 12-φ18 |
| SJ,LSJ80AB | 450 | 545 | 60 | 25 | 28 |
6 5 |
8 |
345 360 |
390 410 |
430 460 |
8-M16 8-M20 |
380 | 455 | 495 | 30 | 12-φ23 |
| SJ,LSJ90A | 600 | 569 | 69 | 25 | 40 | 7 | 8 | 400 | 450 | 490 |
12-M16 (12-M20) |
430 | 510 | 555 | 30 | 12-φ23 |
| SJ,LSJ100AB | 600 | 685 | 61 | 30 | 40 |
9 5 |
10 |
455(460) 470 |
520 | 580 | 12-M20 | 480 | 560 | 600 | 22.5 | 16-φ23 |
| SJ,LSJ110A | 600 | 685 | 61 | 38 | 40 | 11 | 10 | 520 | 590 | 650 | 12-M20 | 560 | 650 | 700 | 22.5 | 16-φ27 |
| SJ,LSJ120A | 600 | 685 | 61 | 38 | 40 | 11 | 10 | 520 | 590 | 650 | 12-M20 | 560 | 650 | 700 | 22.5 | 16-φ27 |
| SJ,LSJ130AB | 650 | 761 | 85 | 40 | 45 |
11 9 |
10 | 680 | 800 | 880 | 12-M30 | 720 | 810 | 880 | 18 | 20-φ27 |
| SJ,LSJ140A | 650 | 761 | 85 | 40 | 45 |
11 9 |
12 | 680 | 800 | 880 | 12-M30 | 720 | 810 | 880 | 18 | 20-φ27 |
| SJ,LSJ150AB | 650 | 761 | 76 | 50 | 50 |
14 10 |
12 | 820 | 940 | 1020 | 16-M30 | 720 | 810 | 880 | 18 | 16-φ33 |
| SJ,LSJ160AB | 650 | 780 | 81 | 50 | 50 |
14 10 |
12 | 820 | 940 | 1020 | 16-M30 | 840 | 940 | 1020 | 22.5 | 16-φ33 |
| SJ,LSJ180AB | 650 | 910 | 83 | 50 | 50 |
14 10 |
12 | 960 | 1080 | 1160 | 20-M30 | 970 | 1080 | 1160 | 18 | 20-φ33 |
注:圖示所注“h”僅與本樣本BLD、LC-Ⅱ、DC-Ⅱ系列減速機相配,如選用其他型號或其他廠家減速機,“h”需另行計算。增高后的LSJ型機架其下部空間高度可容納205、206或207型雙端面機械密封。
上一篇:JXLD型機架(74標)
下一篇:TJQ型機架


快速鏈接:
產品展示:
聯系我們:
蘇公網安備32020602003192號